Dovre Kamineinsatz Kamineinsätze
Vista 601, 701, 801, 901,
602, 702, 802, 902 C
ZEN 100 102
Kaminkassette Heizkassette
Vista 701I, 702I, 801I, 802I
Dovre bereits
Seit 2000 im Vertrieb!
07.2022 nicht mehr im angebot,
Angebote nicht mehr möglich
Feuerstätten von Dovre sind
Qualitätsprodukte welche unter anderem auch aus hochwertigem Guß aus eigener
Gießerei als idealer Wärmeleiter gefertigt werden. Die Tradition von
Dovre kann auf über 80 Jahre (stand 2017) zurück blicken und bei der
Entwicklung und Fertigung diese langjährigen Erfahrungen einbringen. Diese
Erfahrungen schlagen sich in den bereits vor Jahren erreichten hohen
Wirkungsgrad einiger Feuerstätten wieder. Wenn Sie einen langlebigen
Kamineinsatz suchen sind Sie bei Dovre richtig.!
Diese Einsätze erfüllen die 2. Stufe
der Novellierung der 1.BImSchV zum 22.03.2010
Die Kamineinsätze dieser
Ausstellungsseite sind Kamineinsätze der Bauart 1 (BA 1). BA 1 besagt
selbstschließende Tür. Eine Mehrfachbelegung des Schornsteines ist unter
bestimmten Voraussetzungen möglich. Diese Voraussetzungen muß Ihr
Schornsteinfegermeister speziell vor Ort an Ihrem Schornstein prüfen. Eine
Mehrfachbelegung ist unter anderem auch vor der Schornsteinabmessung
abhängig. Der Schornsteinfeger sollte eine Feuerstätte vor einem Kauf
genehmigen und muß diese vor Inbetriebnahme abnehmen! Beziehen Sie ihn
bereits bei der Planung mit ein!
07.2022 nicht mehr im angebot,
Angebote nicht mehr möglich
der Katalog als PDF ist am Ende der
Seite

Die Dovre VISTA Kamineinsätze
Vista901 Vista801 Vista701 Vista601
Vista902 Vista802 Vista702 Vista602


Modelle mit Endung Ziffer 1 haben Guß im Brennraum
Modelle mit Endung
Ziffer 2 haben Vermiculite im Brennraum
Modelle mit C haben einen
Warmluftmantel
Dovre Kamineinsatz Vista901 Vista902
Vista901C Vista902C

Dovre Kamineinsatz Vista901/902
Energieeffizienz-Klasse A+
Tür Bauart 1
Tür klappbar
Holzbrand
mit Aschentopf
Länge Holzscheite 600 mm
B/H/T 920/830/395 mm
Tür B/H 880/450 mm
Ø Rauchrohrstutzen 200 mm
Rauchrohranschluß oben
Nennwärmeleistung 14 kW
Wirkungsgrad 80 %
externer Verbrennungsluftstutzen Ø 100 mm
Gewicht ca. 125 kg

Dovre Kamineinsatz Vista901C/902C
Energieeffizienz-Klasse A+
mit Warmluftmantel
Tür Bauart 1
Tür
klappbar
Holzbrand
mit Aschentopf
Länge Holzscheite 600 mm
B/H/T 920/835-890/445 mm
Tür B/H 880/450 mm
Ø Rauchrohrstutzen 200 mm
Rauchrohranschluß oben
Nennwärmeleistung 14 kW
Wirkungsgrad 80 %
externer Verbrennungsluftstutzen Ø 100 mm
Gewicht ca. 145 kg

Dovre Kamineinsatz Vista801 Vista802
Vista801C Vista802C

Dovre Kamineinsatz Vista801/802
Energieeffizienz-Klasse A+
Tür Bauart 1
Tür klappbar
Holzbrand
mit Aschentopf
Länge Holzscheite 600 mm
B/H/T 820x830x395 mm
Tür B/H 740/450 mm
Ø Rauchrohrstutzen 200 mm
Rauchrohranschluß oben
Nennwärmeleistung 12 kW
Wirkungsgrad 82 %
Doppelverbrennung
externer Verbrennungsluftstutzen Ø 100 mm
Gewicht
ca. 115 kg

Dovre Kamineinsatz Vista801C/802C
Energieeffizienz-Klasse A+
mit Warmluftmantel
Tür Bauart 1
Tür
klappbar
Holzbrand
mit Aschentopf
Länge Holzscheite 600 mm
B/H/T 830x835-890/445 mm
Tür B/H 740/450 mm
Ø Rauchrohrstutzen 200 mm
Rauchrohranschluß oben
Nennwärmeleistung 12 kW
Wirkungsgrad 82 %
Doppelverbrennung
externer Verbrennungsluftstutzen Ø 100 mm
Gewicht
ca. 135 kg

Dovre
Kamineinsatz Vista701 Vista702 Vista701C Vista702C

Dovre Kamineinsatz Vista701/702
Energieeffizienz-Klasse A+
Tür Bauart 1
Tür klappbar
Holzbrand
mit Aschentopf
Länge Holzscheite 500 mm
B/H/T 720/830/395 mm
Tür B/H 680/400 mm
Ø Rauchrohrstutzen 150 mm
Rauchrohranschluß oben
Nennwärmeleistung 10 kW
Wirkungsgrad 83 %
externer Verbrennungsluftstutzen Ø 100 mm
Gewicht ca. 105 kg

Dovre Kamineinsatz Vista701C/702C
Energieeffizienz-Klasse A+
mit Warmluftmantel
Tür Bauart 1
Tür
klappbar
Holzbrand
mit Aschentopf
Länge Holzscheite 500 mm
B/H/T 730/835-890/445 mm
Tür B/H 680/400 mm
Ø Rauchrohrstutzen 150 mm
Rauchrohranschluß oben
Nennwärmeleistung 10 kW
Wirkungsgrad 83 %
externer Verbrennungsluftstutzen Ø 100 mm
Gewicht ca. 125 kg

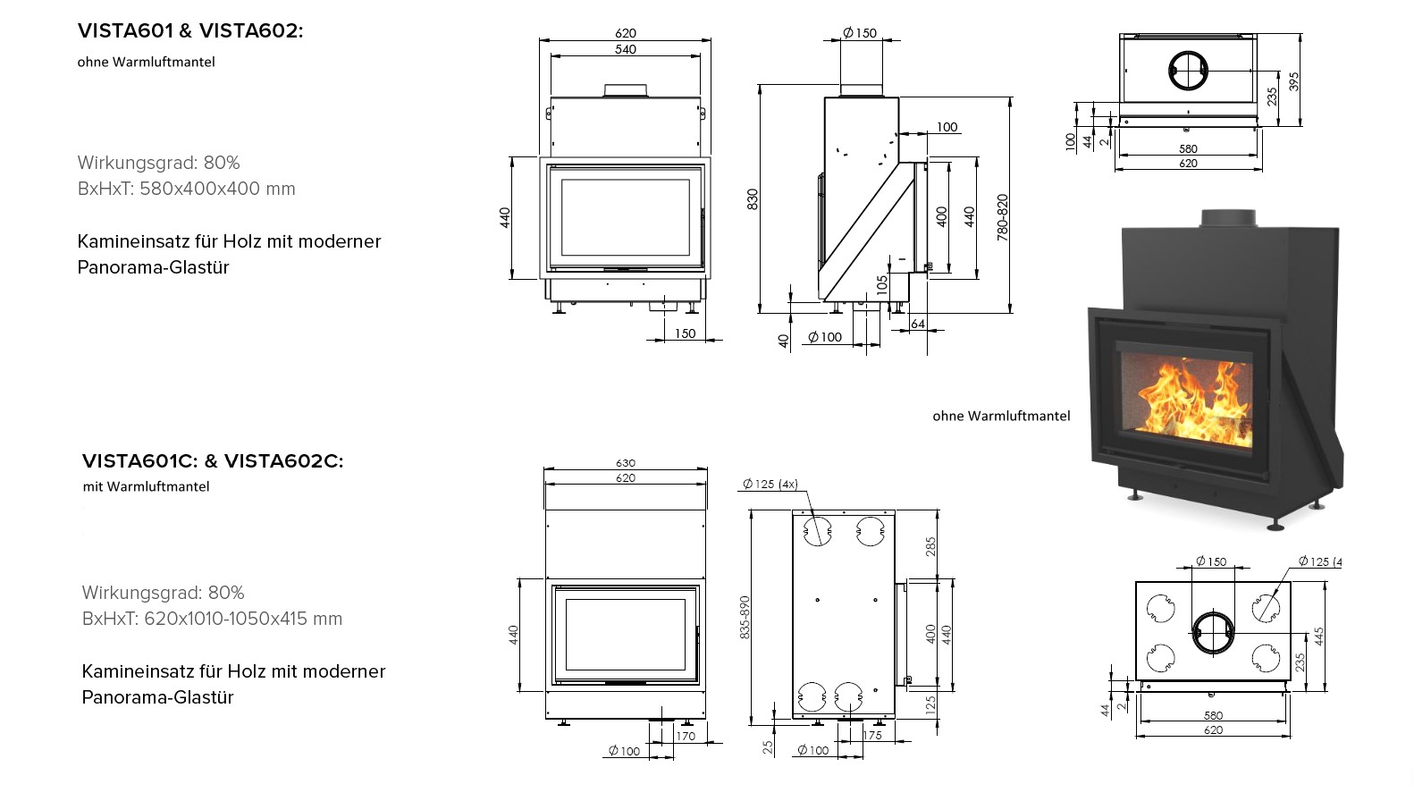
Dovre Kamineinsatz
Vista601 Vista602 Vista601C Vista602C

Dovre Kamineinsatz Vista601 Vista602
Energieeffizienz-Klasse A+
Tür Bauart 1
Tür klappbar
Holzbrand
mit Aschentopf
Länge Holzscheite 400 mm
B/H/T 620/830/395 mm
Tür B/H 540/400 mm
Ø Rauchrohrstutzen 150 mm
Rauchrohranschluß oben
Nennwärmeleistung 8 kW
Wirkungsgrad 80 %
externer Verbrennungsluftstutzen Ø 100 mm
Gewicht ca. 95 kg

Dovre Kamineinsatz Vista601C
Vista602C
Energieeffizienz-Klasse A+
mit Warmluftmantel
Tür Bauart 1
Tür klappbar
Holzbrand
mit Aschentopf
Länge Holzscheite
400 mm
B/H/T 630/835-890/395 mm
Tür B/H 580/400 mm
Ø Rauchrohrstutzen 150 mm
Rauchrohranschluß oben
Nennwärmeleistung 8 kW
Wirkungsgrad 80 %
externer Verbrennungsluftstutzen Ø
100 mm
Gewicht ca. 115 kg

Die Dovre Kamineinsätze ZEN100
ZEN102

Dovre Kamineinsatz ZEN100

Dovre Kamineinsatz ZEN100
Energieeffizienz-Klasse A+
Tür Bauart 1
Tür klappbar
Holzbrand
ohne Aschenkasten
Länge Holzscheite 300 mm
B/H/T 580/765/340 mm
Blendrahmen der Tür B/H 460/415 mm
Ø Rauchrohrstutzen 150 mm
Rauchrohranschluß oben
Nennwärmeleistung 4,8 kW
Wirkungsgrad 80 %
externer Verbrennungsluftstutzen Ø 100 mm
Gewicht ca. 115 kg

Dovre Kamineinsatz ZEN102

Dovre Kamineinsatz ZEN102
Energieeffizienz-Klasse A+
Durchsicht
Tür Bauart 1
Tür klappbar
Holzbrand
ohne Aschenkasten
Länge Holzscheite 300 mm
B/H/T 580/765/373 mm
Blendrahmen der Tür B/H 460/415 mm
Ø Rauchrohrstutzen 150 mm
Rauchrohranschluß oben
Nennwärmeleistung 4,8 kW
Wirkungsgrad 80 %
externer Verbrennungsluftstutzen Ø 100 mm
Gewicht ca. 100 kg

Dovre Kaminkassette Heizkassette
Vista701I Vista 702I Vista801I Vista802I


Dovre Kaminkassette Heizkassette
Vista701I und Vista702I
Energieeffizienz-Klasse A
Tür Bauart 1
Tür klappbar
Holzbrand
mit Aschentopf
Länge Holzscheite 500 mm
B/H/T 690/490/440 mm
Ø Rauchrohrstutzen 150 mm
Rauchrohranschluß oben
Nennwärmeleistung 10 kW
Wirkungsgrad 78 %
Gewicht ca. 90 kg

Dovre Kaminkassette
Heizkassette Vista801I und Vista802I
Energieeffizienz-Klasse A
Tür Bauart 1
Tür klappbar
Holzbrand
mit Aschentopf
Länge Holzscheite 600 mm
B/H/T 790/590/440 mm
Ø Rauchrohrstutzen 180 mm
Rauchrohranschluß oben
Nennwärmeleistung 11 kW
Wirkungsgrad 75 %
Gewicht ca. 100 kg

PDF Dovre Katalog 2018-2019 12,2 MB
07.2022 nicht mehr im angebot,
Angebote nicht mehr möglich
Informationen gemäß
EU-Produktsicherheitsverordnung (GPSR)
Hersteller:
DOVRE NV
BE0437960542
Nijverheidsstraat 18
B-2381 Weelde
info@dovre.be
Datenschutzerklärung
zurück zur Internetseite
zur Inhaltseite wenn Sie durch eine Suchmaschine auf diese Seite gelangt sind
zu Hause / Impressum